Maison Paradis : un plan optimisé et évolutif
Un aménagement fonctionnel
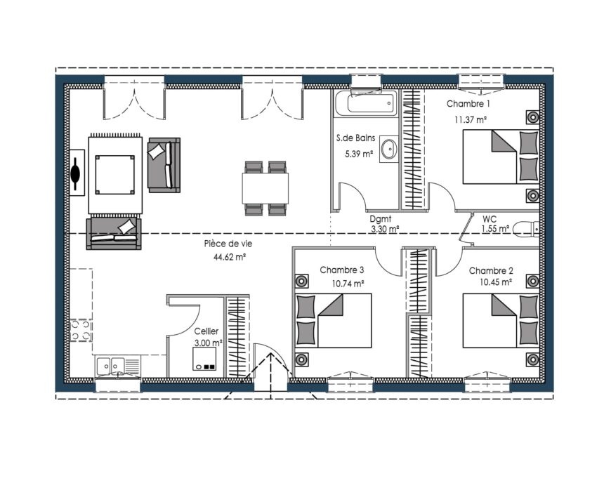
La Maison Paradis est conçue pour offrir un espace de vie confortable et bien pensé. De plain-pied, elle sépare distinctement les espaces jour et nuit pour plus de praticité. Le séjour traversant, lumineux grâce aux baies vitrées, s’ouvre sur une cuisine, créant un espace convivial et fluide.
Un espace nuit adapté à tous les besoins
L’espace nuit comprend de 2 à 4 chambres, toutes équipées de placards pour un rangement optimisé. La circulation est étudiée pour minimiser la perte de surface et garantir un agencement efficace.
Une maison modulable et personnalisable
Disponible en cinq configurations, cette maison s’adapte à toutes les situations, avec des surfaces allant de 64 m² à 110 m². Selon les besoins, il est possible d’ajouter un garage, de modifier l’agencement des pièces ou d’ajuster les surfaces pour une maison sur-mesure.
Je souhaite être recontacté par MCA
En accord avec la loi informatique et libertés du 6 janvier 1978, vous bénéficiez d’un droit d’accès, de rectification, de suppression et de portabilité de vos données. Vous seul pouvez exercer ces droits sur vos propres données en écrivant à dpo@hexaom.fr en joignant une copie de votre pièce d’identité. En savoir plus sur notre politique de confidentialité.
*Champs obligatoires
Découvrez notre catalogue






