Maison plain-pied à Gujan-Mestras
Être contactéUne maison adaptée au mode de vie de ses habitants
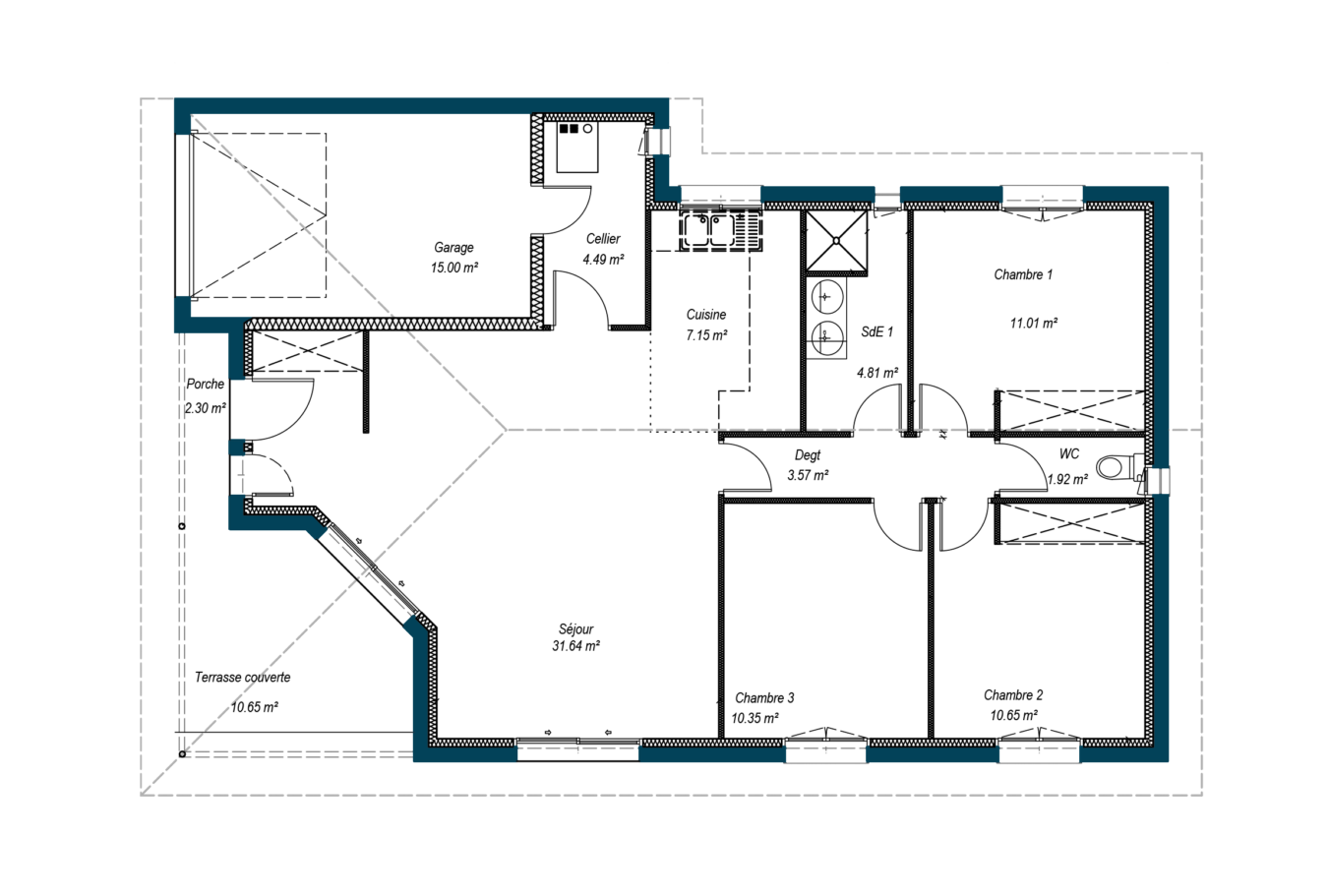
Cette réalisation a été livrée à nos clients en avril 2019. Il s’agit du deuxième projet de construction de nos clients avec MCA. En effet, après quelques années dans leur première maison, ils souhaitaient une maison légèrement plus grande. Cette jolie maison Arcachonnaise bénéficie d’une surface habitable de 116 m² et se compose de 4 chambres.
Il s’agit d’un modèle personnalisé puisque les clients ont conçu eux-mêmes le plan de la maison afin que l’aménagement des pièces réponde parfaitement à leurs besoins et à leur mode de vie. La décoration intérieure est à la fois moderne et épurée comme dans la salle d’eau avec douche à l’italienne et double vasque. C’est aussi le cas de la cuisine ouverte & lumineuse avec une table haute centrale qui fait office de démarcation avec le séjour.
Un environnement urbain
La maison est située dans le centre-ville de Gujan-Mestras, à quelques minutes du Bassin d’Arcachon. La taille limitée du terrain de 500m² est constituée principalement de pelouse pour que les enfants puissent jouer dehors et d’un potager pour récolter de bons légumes et aromates pendant l’été.
Afin de respecter les contraintes de l’urbanisme, cette maison de plain-pied est agrémentée de briquettes dans les angles et de tuiles rouge « Marseille » ce qui lui confère un style typique de l’architecture locale.
Je souhaite être recontacté par MCA
En accord avec la loi informatique et libertés du 6 janvier 1978, vous bénéficiez d’un droit d’accès, de rectification, de suppression et de portabilité de vos données. Vous seul pouvez exercer ces droits sur vos propres données en écrivant à dpo@hexaom.fr en joignant une copie de votre pièce d’identité. En savoir plus sur notre politique de confidentialité.
*Champs obligatoires
Imaginez votre maison sur-mesure
Découvrir







